logo

Как сделать реконструкцию объекта незавершённого строительства

Печатная версия страницы
Реконструкция объекта незавершённого строительства
Реконструкция объекта незавершённого строительства

Строительство дома часто «замораживается» по различным причинам. Если собственник оформил дом в качестве объекта незавершённого строительства, рано или поздно встаёт вопрос о возобновлении работ или реконструкции.

ОНС (объект незавершённого строительства) считается таковым, если возведён фундамент. Строение признаётся недостроем на основании заключения кадастрового инженера или строительной экспертизы. Достроить дом возможно — нужно правильно оформить документы и получить соответствующие разрешения.

Возможна ли реконструкция объекта незавершённого строительства

Юрист отвечает: да, реконструкция ОНС (объекта незавершённого строительства) возможна. В Градостроительном кодексе под реконструкцией понимают изменение параметров дома: площади, этажности и так далее.

По закону к капитальным объектам относятся и недостроенные дома — у них есть фундамент. Соответственно, можно сделать вывод, что положения о реконструкции распространяются в том числе и на объекты незавершённого строительства. К особенностям реконструкции недостроев относится:

  • Необходимость разработки проектной документации;
  • Получение согласований от ведомств. В зависимости от объекта понадобится получить либо разрешение на строительство, либо разрешение на реконструкцию. Дополнительно работы согласовываются с контролирующими организациями;
  • Обращение за оценкой технического состояния объекта. Если недостроенный дом долго стоял в заброшенном виде, стоит оценить, какая ситуация возникла на текущий момент. И дать ответы на вопросы, нужно ли предпринимать дополнительные меры для укрепления конструкций или проводить демонтаж;
  • Соблюдение законодательных и градостроительных норм. Реконструкция ОНС не должна противоречить действующим требованиям ПЗЗ, а также ЗК и ГрК РФ.

Обратите внимание: чем выше процент готовности недостроенного дома, тем легче сделать реконструкцию. Также сложность проводимых работ зависит от цели переустройства (например, улучшение характеристик, смена назначения, проведение коммуникаций, пристрой, смена кровли, достраивание объекта до полной готовности).

Если у недостроенного объекта готов только фундамент, другие конструктивные элементы в начальном состоянии — понадобится доработка или разработка новой проектной документации.

Достройка объекта незавершённого строительства: это новое строительство или реконструкция

Во многих случаях реконструкция ОНС более целесообразна, чем строительство. Собственникам часто непонятно, в чём разница между достройкой и реконструкцией недостроя. Можно отметить, что само по себе понятие «достройка» означает нечто среднее между строительством и реконструкцией.

Юридическая справка. Достройка ОНС — это продолжение строительных работ, ранее начатых и по какой-то причине незаконченных вовремя. Как правило, в отношении такого объекта уже есть проект, разрешительная документация.

Реконструкция ОНС — не просто продолжение строительства, но и значительное изменение объекта, его основных параметров, конструкций, коммуникаций. При реконструкции недострой подвергается расширенному переустройству, меняются планировочные решения. В 70% случаев требуется разработка нового проекта реконструкции.

Понятие «достройка ОНС» больше относится к новым строительным работам — если собственнику нужно просто закончить процесс возведения дома. Но если при достройке возникает желание поменять параметры объекта, это будет считаться уже реконструкцией.

Изначально у строительства дома и реконструкции разные цели. Реконструкция ОНС направлена на улучшение уже имеющихся конструкций, модернизацию фасадов, увеличение площади, в том числе достройку объекта до готового состояния.

Строительство ОНС подразумевает под собой разработку нового объекта недвижимости на уже заложенном фундаменте. Для обоих случаев понадобится разработанная проектная документация на дом, согласование от ведомств и техобследование объекта.

Нужно ли оформлять разрешение на реконструкцию объекта незавершённого строительства

Да, оформлять разрешение на реконструкцию объекта незавершённого строительства, требуется в любом случае. При этом не имеет значения, что именно будет меняться, на каком этапе строительства находится дом — согласовывать нужно любые работы.

Разрешение на реконструкцию считается подтверждением, что проводимые работы безопасны, не нарушают градостроительные нормы. К работам, требующим разрешения относятся: перепланировка, увеличение этажности дома, замену фундамента и конструкций, переоборудование помещений. Заказать разрешение на реконструкцию недостроя можно у юристов «Истрариел».

Как получить разрешение на реконструкцию ОНС

При оформлении разрешения на реконструкцию недостроенного дома разрабатывается и согласовывается проект. Дополнительно подготавливается перечень документов, включающий в себя правоустанавливающую выписку, заявление, техплан недостроенного объекта (при наличии).

Владелец подаёт документы в Госстройнадзор и Москомархитектуру самостоятельно или обращается за помощью к юристу. Заявление и проект рассматриваются организациями, выносится решение: одобрить проект и выдать разрешение на реконструкцию недостроенного объекта или отказать в выдаче документа.

Оформление документов для реконструкции объекта незавершённого строительства

Документы для получения разрешения на реконструкцию недостроенного дома

Кроме разрешения на проведение реконструкции объекта незавершённого строительства собственник подготавливает:

Перечень документов можно подать в электронном формате, заверить цифровой подписью. Ведомства выносят решение в течение 7 рабочих дней. Собственнику в ответ выдаётся уведомление о том, что работы разрешены. Если по истечении указанного срока владелец не получил ответ, лучше уточнить ответ при личном обращении в организацию.

Проект реконструкции ОНС

Проект реконструкции недостроенного объекта разрабатывается с учётом пожеланий владельца и проводится после проведения технического обследования конструктивных элементов. Работы по составлению проекта проводятся поэтапно.

1 этап. Подготовка к разработке проектной документации на ОНС

На текущем этапе владелец обращается в проектную компанию с определённым запросом — разработать проект реконструкции на недострой. Обсуждаются цели и задачи реконструкции. Подписывается договор на оказание услуг с компанией, предоставляющей услуги проектирования. В перечень заполняемых документов входит договор, техническое задание, приводится примерный список требуемых чертежей, сметная документация.

В договоре подряда определяются правила и обязанности проектной компании, срок сдачи работы заказчику. В техзадании описывается предстоящая работа — гарантируется, что по завершении собственник получит на руки согласованный и утверждённый проект реконструкции. В приложенной к проекту сметной документации планируется указать цену каждого этапа работ по реконструкции недостроенного дома.

2 этап. Разработка концепции и виртуальной модели будущего объекта

На данном этапе проектировщик приступает к разработке архитектурных и конструктивных решений на основании обмеров и фотоматериалах недостроенного объекта (если собственник предоставляет такие материалы). При создании виртуальной модели объекта владельцу предлагаются варианты изменений — переустройства, надстройки или пристройки. Заказчику показываются разработанные идеи по реконструкции объекта незавершённого строительства. После анализирования каждого варианта владельцем дома выбирается подходящий для реализации.

3 этап. Эскизный проект

Разрабатывается схема поэтажных изменений, определяется архитектурный стиль дома. Все разработки согласовываются с заказчиком. Проект реконструкции предоставляется собственнику для рассмотрения во всех ракурсах, детально обсуждается реконструкция недостроенного дома снаружи и внутри.

Утверждённая модель проекта реконструкции дома становится базой для последующей разработки чертежей.

4 этап. Формирование архитектурных и рабочих чертежей

На текущем этапе конкретизируется и дорабатывается эскизный проект. В результате собственник одобряет чертежи, планировочные решения объекта. Проектировщик разрабатывает чертежи, модель фундамента, стен. Заказчик сможет детально осмотреть проект будущего объекта, как по отдельности, так и в целом.

После согласования с заказчиком начинается сам этап реконструкции. Проводятся строительно-монтажные работы: возведение стен, демонтаж перегородок.

Нужен ли технический план при реконструкции объекта незавершённого строительства

Если владелец ранее оформлял право собственности на недостроенный дом, значит, у него есть технический план. В нём указан процент готовности недостроя, содержится заключение кадастрового инженера. При наличии техплана рекомендуем предоставить его для разработки проекта.

После завершения работ по реконструкции объекта незавершённого строительства нужно получить новый технический план. В нём будут отражены все изменения, подобные данные о параметрах объекта. На основании техплана кадастровая палата проведёт корректировку данных о доме в ЕГРН. Без техплана перевести объект из недостроя в готовое состояние не получится. Одновременно с переводом объекта из ОНС в завершённый проводится постановка на кадастровый учёт. В кадастр вносится информация о площади, этажности дома. На руки выдаётся выписка из ЕГРН, подтверждающая постановку на объекта после реконструкции на учёт и свидетельствующая о зарегистрированном праве собственности.

Заказать технический план можно у кадастровых инженеров «Истрариел». Документ понадобится при совершении сделок с недвижимостью и других юридических операциях. После того, как работы по реконструкции будут завершены, собственник вызывает кадастрового инженера для составления техплана. На месте будут проведены измерения. Далее они обработаются и переведутся в цифровой формат в камеральном отделе.

В графическую часть техплана после реконструкции недостроенного дома включают план объекта со списком помещений, инженерными коммуникациями, фасадом и разрезом дома. Дополнительно прикладывается схема расположения объекта на участке. В текстовой части кадастровый инженер указывает данные о доме, включая его кадастровый номер, размер площади, личные и контактные данные о собственнике. В техплане указывается список проведённых работ, подробно расписывается, какие изменения были проведены в ходе реконструкции, какие материалы использовались. В конце документа приводится заключение, свидетельствующее о том, что дом реконструирован с соблюдением норм.

Пример №1 из практики по оформлению реконструкции недостроенного объекта

В компанию «Истрариел» обратился собственник дома с запросом на оформление документов на проведение реконструкции недостроенного дома. Перед юристами была поставлена задача сделать проект реконструкции и другие документы.

На первоначальной стадии заказчик предоставил нашим проектировщикам действующие обмеры дома, фотографии, техническую документацию. Дом был почти достроен: но владелец не захотел достраивать объект по предыдущим планировочным решениям. Было сделано следующее:

  • Выявлены потребности заказчика и предложены варианты реконструкции;
  • Выстроена компьютерная модель дома по данным, которые нам направил собственник;
  • Составлен список основных недостатков объекта, которые можно скорректировать проведением реконструкции. И разработаны способы достраивания объекта.

К минусам планировки мы отнесли: неудобный вход в дом, тесные проходы между комнатами, отсутствие места и другие нюансы. Кроме того, нужно было закончить работы по установке кровли.

При разработке проекта реконструкции проектировщики совместили задачи: выполнили желания собственника, определили способы исправления минусов в процессе достраивания дома.

Модель дома мы направили заказчику на рассмотрение. Было сделано несколько разных вариантов пристроек, расположения террасы. Применялись разнообразные архитектурные решения.

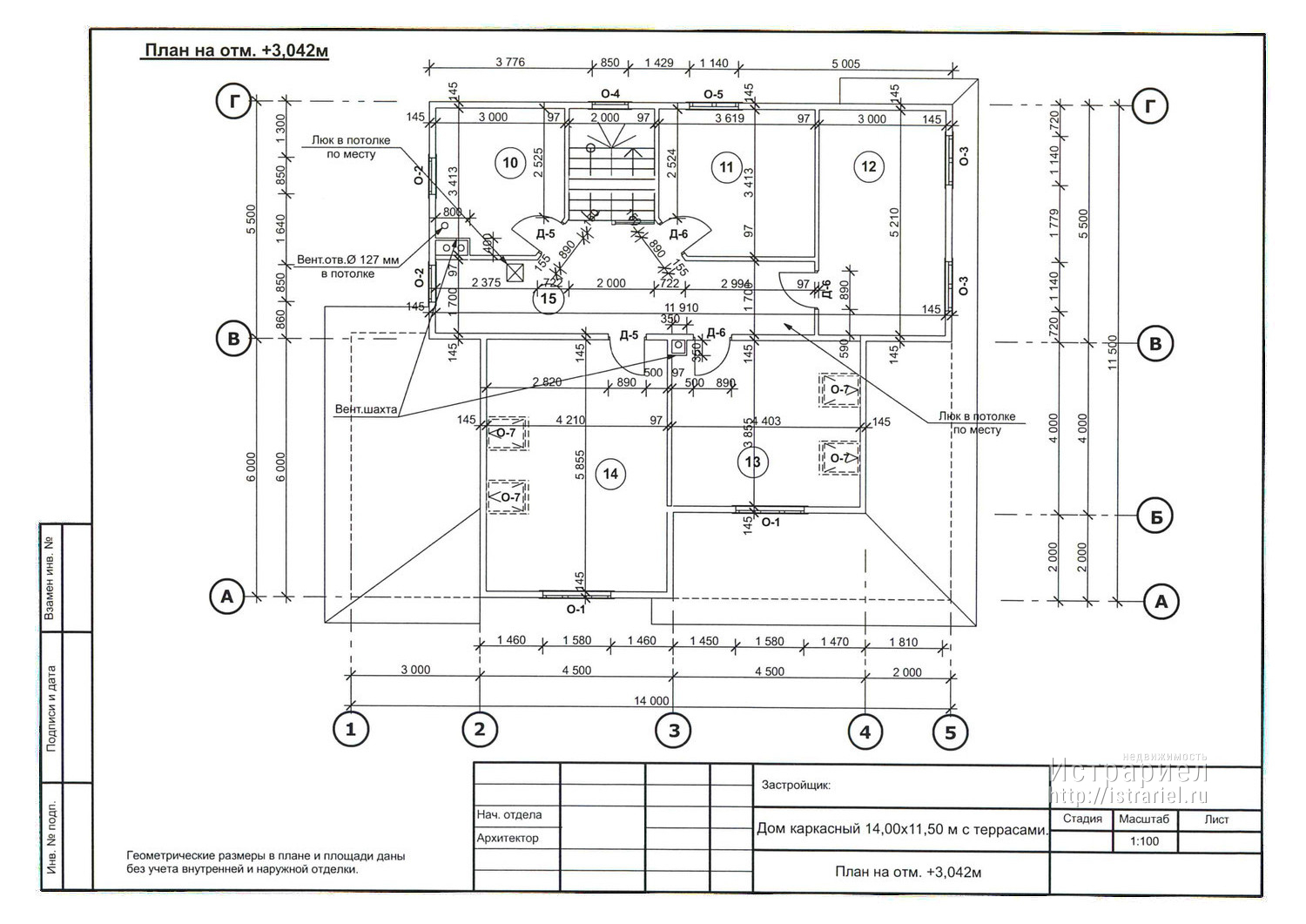
В итоге собственник выбрал вариант, позволяющий незначительно изменить вход в дом, изменить планировку первого этажа объекта. Выбранные корректировки позволяли существенно не затрагивать уже имеющиеся конструкции дома. Вот план 1 этажа объекта.

План 1 этажа при реконструкции недостроенного дома

В ходе реконструкции недостроенного дома сразу были проведены работы по переносу коридора — он оказался теперь под балконом второго этажа. Вместо гаража было сделано большое помещение с выходом на улицу. В проект реконструкции были включены архитектурные решения: укрепление фундамента, достройка кровли, создание перегородок и перекрытий.

Чертёж 2 этажа при реконструкции объекта незавершённого строительства

На руки от наших проектировщиков заказчик получил комплект чертежей, расчёт строительных материалов, необходимых для проведения работ, описание порядка модернизации инженерных сетей, надстройки этажа и монтажа конструктивных элементов крыши.

Благодаря разработанным документам по реконструкции ОНС собственник провёл работы, достроил дом и изменил конструктивную основу объекта. После изменений дом возрос в рыночной стоимости и стал пригодным для проживания и эксплуатации.

Пример №2 из практики по разработке документов для реконструкции

Ситуация. Собственник недостроенного дома изначально не планировал разрабатывать проектную документацию для реконструкции. Решил самостоятельно, какие материалы использовать, договорился о стоимости проведения работ и приступил к работе без предварительного оформления документов. Строительство дома проводилось медленно. После завершения этапа по возведению «коробки» дома владелец решил временно приостановить стройку.

Спустя время собственник решил, что размеры помещений, которые планировались изначально, не соответствуют его требованиям на текущий момент. Требовалось расширить помещения и дополнительно спроектировать дом так, чтобы можно было построить лестницу между этажами. А ещё перед владельцем стоял вопрос, как правильно выполнить внешнюю и внутреннюю отделку помещения. Занявшись поисками компании, которая предлагает кадастровые услуги и занимается проектированием домов, владелец выбрал «Истрариел» и обратился за первичной консультацией.

Запрос владельца. Клиент описал ситуацию нашим юристам и пояснил, что возникли дополнительные трудности. Требуется помощь в достраивании дома, разработке проектной документации и в дальнейшем техплана, получении разрешения. Владелец хотел получить разные варианты изменения конструктивных элементов объекта и заказал у нас проект реконструкции дома.

Что было сделано. Юристы приняли запрос клиента и подписали договор об оказании услуг. Пояснили собственнику, что недостроенный дом можно без проблем достроить и в процессе реконструировать. Взяли на себя разработку документации, чтобы в дальнейшем владелец мог избежать возникновения неприятных нюансов в процессе регистрации.

Сначала принялись за разработку проекта реконструкции. На основании документации рассчитали смету на проведение строительных работ. При наличии сметы владелец сможет установить фиксированную цену за услуги достраивания и реконструкции объекта.

Первоначально договорились с заказчиком о выезде на недостроенный объект и провели необходимые замеры. Мы не использовали для проектирования результаты прошлых обмерных работ — нам было необходимо установить действующие параметры объекта незавершённого строительства. Дополнительно провели комплексные исследовательские работы — экспертную проверку конструкций и рассчитали уровень предельных нагрузок на фундамент.

После получения результатов измерений разработали основу и техзадание для формирования проекта реконструкции ОНС, сделали эскизный проект, а затем сформировали архитектурные, объёмно-планировочные и конструктивные решения. Владелец контролировал ход работ — мы не переходили на следующую стадию до тех пор, пока не было получено одобрение заказчика.

План кровли при реконструкции объекта незавершённого строительства

В качестве примера приводим исходные данные дома:

  • Этажность — 2, не до конца построен. Вблизи расположен пристрой на начальной стадии строительства (планируется размещение гаража);
  • Фундамент возведён, тип — ленточный;
  • Стены дома из бруса, деревянные балки перекрытия;
  • Кровля не установлена, но заказчик планировал использовать металлочерепицу для создания герметичной кровли;
  • Инженерные коммуникации не проведены.

Конечные данные дома после разработки проекта реконструкции недостроенного объекта:

  • Внутренние и внешние стены — каркасные, с внутренним утеплением. Проведены дополнительные работы по гидроизоляции;
  • Сделана утеплённая стяжка по грунту с использованием цементно-песчаного раствора;
  • Цокольное перекрытие в зоне веранды, в зонах отдыха, перекрытие 1 этажа — деревянные балки;
  • Утепление стен пенопластом и декоративной штукатуркой;
  • Окна пластиковые, кровля из металлочерепицы, полы — керамическая плитка;
  • Автономное отопление, подключение к электро- и водоснабжению.

Итог. Владелец участка и недостроенного дома получил на руки все необходимые документы для проведения реконструкции и дальнейшего достраивания объекта. После того, как работы были завершены, собственник снова обратился к нам для формирования технического плана и регистрации реконструкции в Росреестре. Мы сделали: проект реконструкции, получили разрешение на реконструкцию, согласовали с ведомствами, контролировали этапы строительства при помощи исполнительной съёмки (желание заказчика). В итоге оформили право собственности на дом.

Так выглядит в итоге кровля из металлочерепицы после реконструкции недостроенного объекта.

Кровля из металлочерепицы при реконструкции объекта незавершённого строительства

Юрист отвечает на вопросы о реконструкции объекта незавершённого строительства

Юрист по перепланировкам и реконструкции отвечает на распространённые вопросы собственников объектов незавершённого строительства.

Есть ли ограничения на проведение реконструкции незавершённого строительства?

Да, в определённых случаях на реконструкцию ОНС могут накладываться ограничения. Запрет может возникать по разным причинам, связанным с техническим состоянием конструктивных элементов недостроя, его местоположением. Учитывается, насколько верно выложенный фундамент соответствует градостроительным нормам, нет ли в нём трещин.

Если выяснится, что недостроенный дом в аварийном состоянии, реконструкцию могут запретить или внести ограничения в проект. Иногда достаточно усилить несущие конструкции и существенно переработать объект, внести изменения в площадь. Проверяется также состояние коммуникаций, если они уже были проведены — возможно, понадобится замена труб, модернизация сетей.

Лучше всего делать сравнительную характеристику исходного и нового объекта. Так повышается шанс, что ведомства одобрят реконструкцию недостроенного дома. Иногда выявляются проблемы с участком. Например:

  • Пересечение границ с красными линиями;
  • Несоответствие вида использования участка объекту;
  • Попадание земли в природоохранную зону;
  • Расположение дома вблизи объекта культурного наследия.

Во всех ситуациях, когда запрет на реконструкцию связан с участком, стоит сначала устранить причины, а затем подавать заявление на выдачу разрешения на проведение работ. При расположении дома вблизи ОКС (культурного наследия), потребуется получить согласование от Министерства культуры.

Стоит обратить внимание, что иногда реконструкция потребует получения согласования от соседей: если пристройка расположена близко и нарушает права и интересы других лиц. Не менее часто возникает ограничение на подключение дома к инженерным сетям. Во всех случаях юрист может помочь снять ограничение на проведение работ, оформив недостающие документы.

Какие риски могут возникать при реконструкции объекта незавершённого строительства?

У реконструкции недостроенного дома есть свои риски, начиная от законодательных, до технических. Часто возникают проблемы на этапе подготовки документации — нужно следить за соответствием законам и принятым нормам.

Часто выявляются несоответствия проектной документации действующим параметрам дома. В таких случаях проектировщики корректируют проект и вносят необходимые изменения. Конструктивные элементы недостроенного дома могут иметь скрытые дефекты, что приводит впоследствии к обрушению. При проектировании нужно детально учитывать эти риски, одновременно следить за мерами пожарной безопасности.

Если собственник не обращался к юристу за получением документов, риск отказа в выдаче разрешения на реконструкцию недостроя повышается. Работы на объекте приостанавливаются до тех пор, пока не документы не будут оформлены соответствующим образом. Иногда реконструкции мешает факт изменения законодательства, что влечёт за собой необходимость корректировки проекта. Собственник недостроенного дома может минимизировать риски, если проведёт строительную экспертизу объекта, обратится за разработкой проекта реконструкции, оформит разрешения и будет своевременно контролировать ход строительных работ.

Сколько стоит проект реконструкции объекта незавершённого строительства?

Проект реконструкции объекта незавершённого строительства в компании «Истрариел» стоит 50 000 рублей. Получение разрешения на реконструкцию без разработки проекта — 10 000 рублей. При комплексном заказе услуг предоставляем скидку. Цена разработки технического плана после реконструкции дома составляет 15 000 рублей.

Юристы и кадастровые инженеры «Истрариел» оформляют документы для проведения реконструкции объекта незавершённого строительства. Получают разрешение, разрабатывают проект реконструкции. Проводят замеры, делают техническое обследование недостроенного дома. Формируют технический план. Оформляют изменения в Росреестре, выдают выписку. Контролируют ход проведения работ. Звоните для получения комплекса услуг по проведению реконструкции домов и недостроенных объектов.